Summary
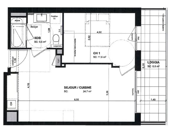
- 42 m2
- 2 Rooms
- 1 Bedrooms
- 1 Bathrooms
Description
Close to the pedestrian street of Capbreton, quiet and 10 minutes walk from the beaches. Beautiful 42 m2 apartment located on the 1st and top floor with large terrace/loggia. The kitchen is fitted and equipped, the spacious bathroom with toilet and laundry room, the living room with large bay window and large storage, bedroom with large wardrobe shelf also with large opening onto the terrace. City gas heating and hot water production, electric shutters, private parking in the basement (possibility of boxing), bicycle storage. Recent residence (2019) secure with green spaces, beautiful general amenities. Only 18 apartments. Very reasonable co-ownership fees: 84 euros per month. TF: 840 euros. Ten-year guarantees and DO, no procedure in progress. Possibility to visit the property according to your availability. Technical information: Information on the risks to which this property is exposed is available on the Géorisques website: www.georisques.gouv.fr. DPE B 52 and C 12. Estimated annual energy cost of the home between €230 and €310/year. Reference date for energy prices used to establish this estimate: 2015. Offered for sale by the TERRES & OCEAN immobilier agency, price including 6% agency fees: €360,400 or €340,000 net seller. Sales agent Ms. Carla VINTROU tel: 0622022060, Sales agent RSAC 902680404
Diagnostic de performance énergétique
Géorisques
Information on the risks to which this property is exposed is available on the GeoHazards website https://www.georisques.gouv.fr








































